SOHO现代城软装设计效果图
CAD绘制/SU定制家居设计
授课指导罗老师、张老师专业点评:李同学软装作品整体以工业风为主,作品整体色调相对来说是深色调,方案呈现完整,工业风的氛围表达到位,特别是材质的特点,用到一些粗糙的材质和皮质的对比效果,体现了强烈的工业分割特点。李同学学习能力很强,学习主动性很强,是一位非常细心并能虚心学习学员。整体五星作品很棒,且定制家具绘制的施工图的制作专业,且绘制严谨,整体作品是一份非常优秀的作品。2112期室内设计表现大师班褚同学作品
天泰御园软装设计效果图
CAD绘制/SU定制家居设计
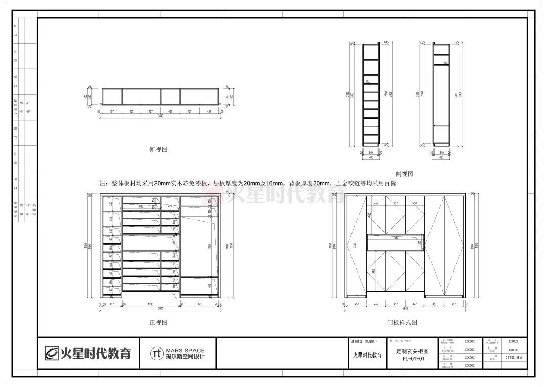
授课指导罗老师、张老师专业点评:软装方案的设计非常的完整,整体氛围表达的时尚、简约和个性的特点为主,颜色上鲜艳的红色和黑色的结合强烈的色彩感,大批额空间整体的浅色调有非常多的颜色层次和明度上的对比效果,让人耳目一新的感觉。褚同学之前在索菲亚做定制家具设计师,很有设计经验,平时喜欢帮助其他同学,制作的软装作品板式色彩较突出,作品风格整体统一,版式设计精致,定制家具施工图作品制图规范。2112期室内设计表现大师班王同学作品
北装金隅软装设计效果图
CAD绘制/SU定制家居设计项目辅导常方老师专业点评:这名学员从开始学习就非常认真,有自己的想法,整个作品是中式风格,从风格的把控比较好,从开始的汇报方案到整个效果图,风格非常统一。别墅公装设计课2107期室内设计表现大师班陈同学、赵同学、谢同学作品